Intersection Pie VII et Quatre-Bourgeois, superposition physique, superposition sonore, cacophonie ou mélodie, l’impression première que transmet ce lieu rend perplexe et intrigue. Un bruit retentit sans que l’autre ait terminé. Stretto.

Inspiré directement par son site, ce projet de centre communautaire se développe autour d’une trame structurale en treillis venant créer un premier rythme. Quant au deuxième, il est marqué par une enveloppe ondulée, perforée, qui parcourt le périmètre du bâtiment. Ensemble, un stretto se crée par la superposition décalée des éléments, l’un commence et l’autre se termine juste.

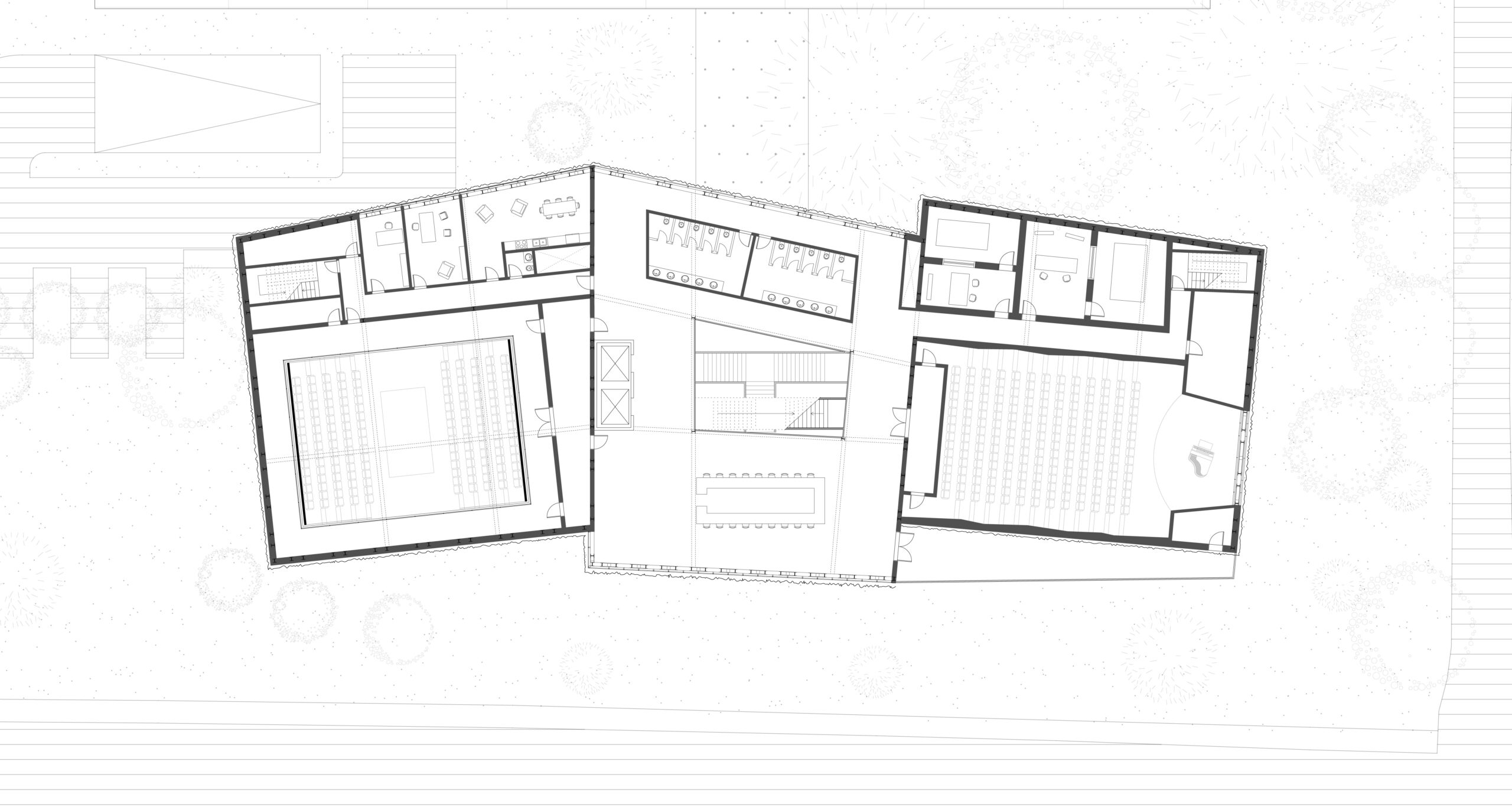
En plus des fonctions communautaires, l’espace lecture, les classes et la salle multidisciplinaire, s’ajoutent au programme des fonctions le liant directement au concept musical : un auditorium, pouvant accueillir plus d’une centaine de personnes, des studios d’enregistrement et des espaces de pratique de musique disponibles pour tous. De ces fonctions découle la forme globale du bâtiment, soit une forme angulaire venant briser la linéarité du site, tels les panneaux acoustiques d’une salle de spectacle. Ces angularités permettent aussi de venir chercher une largeur plus importante que celle associé à l’empreinte au sol tout en ajoutant un troisième rythme à la façade. Ces différentes interventions sont toutes marquées par la répétition d’un thème : la triangulation, l’ondulation et l’angularité.

Stretto

Wellness For All

Projet Complet

Réalisé avec Samuel Langlois

Hiver 2021

Scroll to Top